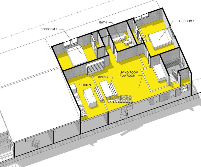
Created design and layout graphics for a residential remodel in East Bay, CA. Presented the deliverables the Homeowner/Client and collaborated on development of a construction timeline.
Created graphics to show layout to Homeowner/Client
Created final layout for Homeowner/Client in VR (Walkthrough and interactive)